Building Summary

Data last updated on: 4/4/2026     Ownership current as of: 4/1/2026     Tax Year: 2026
REID 10339

PIN # 2713-73-8875

Location Address Property Description
446 SUMMERS RD
   
Property Owner Owner's Mailing Address
ORTIZ, BIANKA F VELASQUEZ;ORTIZ, EDWIN F VELASQUEZ
446 SUMMERS RD
MORGANTON NC 28655
Parcel
Buildings
Misc Improvements
Land
Deeds
Notes
Sales
Photos
Tax Bill
Map
Building Location Address
446 SUMMERS RD
Card   of  1
Building Details

Building Type SINGLE FAMILY RES
Building Use SNG FAM MOD HOME
Units 0
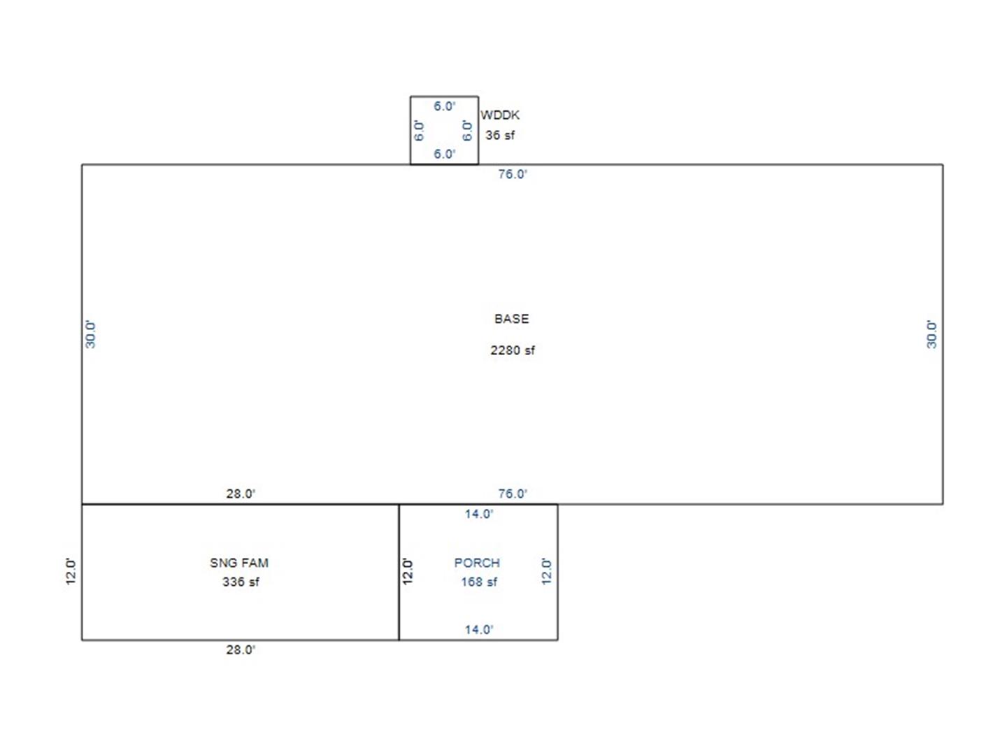
Living Area (SQFT) 2616
Number of Stories 1.00
Style MODULAR
Foundation CRAWL
Exterior VINYL
Const Type
Heating CENTRAL
Air Cond CENTRAL AC
Plumbing Baths (Full):   3
Baths (Half):   0
Extra Fixtures:   2
Total Plumbing Fixtures:   11 
Bedrooms 5
Floor HARDWOOD
Roof Cover ASPHALT SHINGLE
Roof Type DOUBLE PITCH
Main Body (SQFT) 2280
Building Description

Year Built 2021
Additions 3
Effective Year 2021
Remodeled 0
Interior Adj.
Other Features
Building Total & Improvement Details

Grade C 100%
Percentage Complete 100
Total Adjusted Replacement Cost New $221,812
Physical Depreciation (% Bad) 0%
Depreciated Value $215,158
Economic Depreciation (% Bad) 0%
Functional Depreciation (% Bad) 0%
Total Depreciated Value $215,158
Market Area Factor 1.00
Building Value $215,158
Misc Improvements Value
Total Improvement Value $215,158

Assessed Land Value $29,677
   
Assessed Total Value $244,835



Addition Summary 
StoryTypeCodeArea
1.00 WOOD DECK WDDK 36
1.00 SINGLE FAMILY SF 336
1.00 PORCH, OPEN PORC 168
 
Other Improvements 
 


Building Sketch
Photograph
Building Sketch Building Photo
(Click sketch for bigger image)