Building Summary

Data last updated on: 4/4/2026     Ownership current as of: 4/1/2026     Tax Year: 2026
REID 8294

PIN # 2713-59-1274

Location Address Property Description
107 SUMMERS RD
   
Property Owner Owner's Mailing Address
FREDELL, ALLEN L;FREDELL, RAYLENE A
107 SUMMERS RD
MORGANTON NC 28655
Parcel
Buildings
Misc Improvements
Land
Deeds
Notes
Sales
Photos
Tax Bill
Map
Building Location Address
107 SUMMERS RD
Card   of  1
Building Details

Building Type SINGLE FAMILY RES
Building Use SNG FAM
Units 0
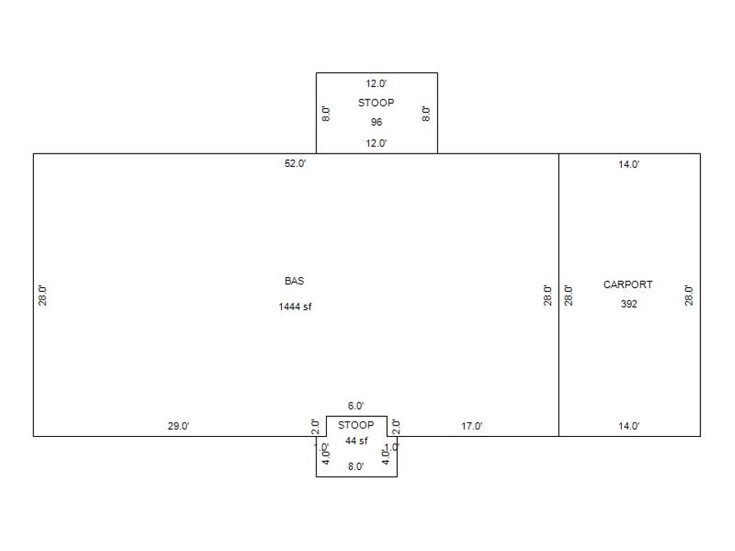
Living Area (SQFT) 1444
Number of Stories 1.00
Style RANCH
Foundation BRICK
Exterior BRICK VENEER
Const Type
Heating CENTRAL
Air Cond NONE
Plumbing Baths (Full):   1
Baths (Half):   1
Extra Fixtures:   0
Total Plumbing Fixtures:   5 
Bedrooms 3
Floor HARDWOOD
Roof Cover ASPHALT SHINGLE
Roof Type DOUBLE PITCH
Main Body (SQFT) 1444
Building Description

Year Built 1963
Additions 4
Effective Year 2000
Remodeled 0
Interior Adj.
Other Features
Building Total & Improvement Details

Grade C+8 108%
Percentage Complete 100
Total Adjusted Replacement Cost New $239,885
Physical Depreciation (% Bad) 0%
Depreciated Value $182,313
Economic Depreciation (% Bad) 0%
Functional Depreciation (% Bad) 0%
Total Depreciated Value $182,313
Market Area Factor 1.00
Building Value $182,313
Misc Improvements Value $177
Total Improvement Value $182,490

Assessed Land Value $36,024
   
Assessed Total Value $218,514



Addition Summary 
StoryTypeCodeArea
1.00 CARPORT CPT 392
1.00 STOOP MASONRY TERR STOO 96
1.00 STOOP MASONRY TERR STOO 44
1.00 BASEMENT UNFINISHED BSMT 1456
 
Other Improvements 
UnitsDescriptionItemCodeYear% BadValue
6x6 DIMENSIONS LEAN TO 1953 75 39
8x6 DIMENSIONS SHED FRAME 1954 75 138
 


Building Sketch
Photograph
Building Sketch Building Photo
(Click sketch for bigger image)