Building Summary

Data last updated on: 4/4/2026     Ownership current as of: 4/1/2026     Tax Year: 2026
REID 6309

PIN # 2704-01-5750

Location Address Property Description
415 ALEXANDER AVE
   
Property Owner Owner's Mailing Address
HARRIS, MELANIE PERRY
415 ALEXANDER AVE
MORGANTON NC 28655
Parcel
Buildings
Misc Improvements
Land
Deeds
Notes
Sales
Photos
Tax Bill
Map
Building Location Address
415 ALEXANDER AVE
Card   of  1
Building Details

Building Type SINGLE FAMILY RES
Building Use SNG FAM
Units 0
Living Area (SQFT) 1450
Number of Stories 1.00
Style RANCH
Foundation BRICK
Exterior BRICK VENEER
Const Type
Heating CENTRAL
Air Cond CENTRAL AC
Plumbing Baths (Full):   1
Baths (Half):   1
Extra Fixtures:   0
Total Plumbing Fixtures:   5 
Bedrooms 3
Floor VYNL TILE
Roof Cover ASPHALT SHINGLE
Roof Type DOUBLE PITCH
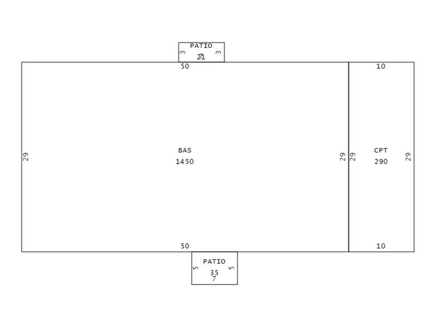
Main Body (SQFT) 1450
Building Description

Year Built 1961
Additions 4
Effective Year 1970
Remodeled 0
Interior Adj.
Other Features
Building Total & Improvement Details

Grade C 100%
Percentage Complete 100
Total Adjusted Replacement Cost New $220,744
Physical Depreciation (% Bad) 0%
Depreciated Value $101,542
Economic Depreciation (% Bad) 0%
Functional Depreciation (% Bad) 0%
Total Depreciated Value $101,542
Market Area Factor 1.00
Building Value $101,542
Misc Improvements Value
Total Improvement Value $101,542

Assessed Land Value $30,863
   
Assessed Total Value $132,405



Addition Summary 
StoryTypeCodeArea
1.00 PATIO, CONCRETE PATI 35
1.00 CARPORT CPT 290
1.00 PATIO, CONCRETE PATI 21
1.00 BASEMENT UNFINISHED BSMT 1450
 
Other Improvements 
 


Building Sketch
Photograph
Building Sketch Building Photo
(Click sketch for bigger image)