Building Summary

Data last updated on: 4/3/2026     Ownership current as of: 4/1/2026     Tax Year: 2026
REID 59824

PIN # 2772-15-0618

Location Address Property Description
3450 LOCKEE ST
   
Property Owner Owner's Mailing Address
HARE, BILLY;HARE, TAMMY
3450 LOCKEE ST
CONNELLY SPRINGS NC 28612
Parcel
Buildings
Misc Improvements
Land
Deeds
Notes
Sales
Photos
Tax Bill
Map
Building Location Address
3450 LOCKEE ST
Card   of  1
Building Details

Building Type SINGLE FAMILY RES
Building Use SNG FAM MOD HOME
Units 0
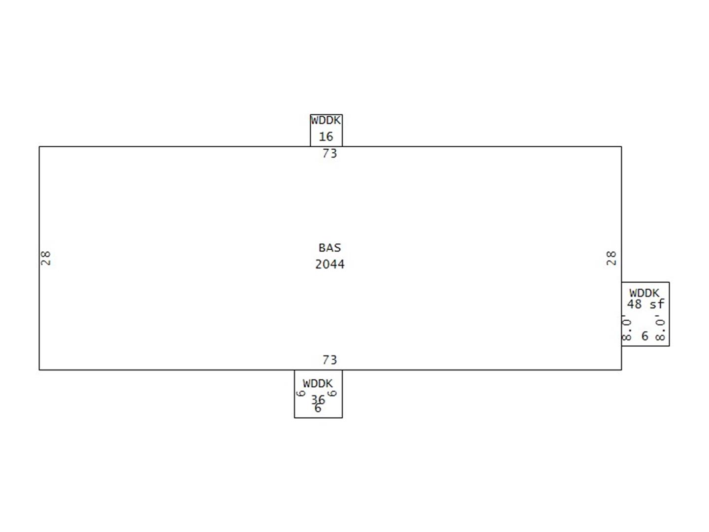
Living Area (SQFT) 2044
Number of Stories 1.00
Style RANCH
Foundation CRAWL
Exterior VINYL
Const Type
Heating CENTRAL
Air Cond CENTRAL AC
Plumbing Baths (Full):   2
Baths (Half):   0
Extra Fixtures:   0
Total Plumbing Fixtures:   6 
Bedrooms 3
Floor VYNL TILE
Roof Cover ASPHALT SHINGLE
Roof Type DOUBLE PITCH
Main Body (SQFT) 2044
Building Description

Year Built 2006
Additions 3
Effective Year 2010
Remodeled 0
Interior Adj.
Other Features
Building Total & Improvement Details

Grade C-8 92%
Percentage Complete 100
Total Adjusted Replacement Cost New $163,487
Physical Depreciation (% Bad) 0%
Depreciated Value $140,599
Economic Depreciation (% Bad) 0%
Functional Depreciation (% Bad) 0%
Total Depreciated Value $140,599
Market Area Factor 1.35
Building Value $189,809
Misc Improvements Value
Total Improvement Value $189,809

Assessed Land Value $23,045
   
Assessed Total Value $212,854



Addition Summary 
StoryTypeCodeArea
1.00 WOOD DECK WDDK 36
1.00 WOOD DECK WDDK 48
1.00 WOOD DECK WDDK 16
 
Other Improvements 
 


Building Sketch
Photograph
Building Sketch Building Photo
(Click sketch for bigger image)