Building Summary

Data last updated on: 12/25/2025     Ownership current as of: 12/22/2025     Tax Year: 2025
REID 58720

PIN # 2733-46-1435

Location Address Property Description
129 MORGAN TRACE DR SW TOWNHOUSE
   
Property Owner Owner's Mailing Address
MONETTE, GARY;MONETTE, AUDREY
129 MORGAN TRACE DR SW #5A
VALDESE NC 28690
Parcel
Buildings
Misc Improvements
Land
Deeds
Notes
Sales
Photos
Tax Bill
Map
Building Location Address
129 MORGAN TRACE DR SW
Card   of  1
Building Details

Building Type SINGLE FAMILY RES
Building Use SNG FAM TOWN HOUSE
Units 0
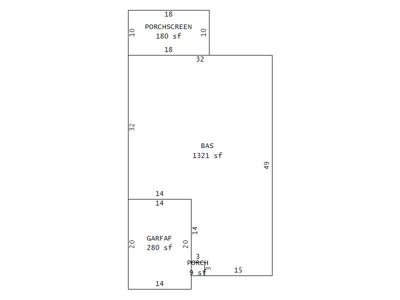
Living Area (SQFT) 1321
Number of Stories 1.00
Style TOWNHOUSE
Foundation CRAWL
Exterior VINYL
Const Type
Heating CENTRAL
Air Cond CENTRAL AC
Plumbing Baths (Full):   2
Baths (Half):   0
Extra Fixtures:   0
Total Plumbing Fixtures:   6 
Bedrooms 3
Floor VYNL TILE
Roof Cover ASPHALT SHINGLE
Roof Type DOUBLE PITCH
Main Body (SQFT) 1321
Building Description

Year Built 2005
Additions 3
Effective Year 2006
Remodeled 0
Interior Adj.
Other Features
Building Total & Improvement Details

Grade B 122%
Percentage Complete 100
Total Adjusted Replacement Cost New $222,898
Physical Depreciation (% Bad) 0%
Depreciated Value $182,776
Economic Depreciation (% Bad) 0%
Functional Depreciation (% Bad) 0%
Total Depreciated Value $182,776
Market Area Factor 1.00
Building Value $182,776
Misc Improvements Value
Total Improvement Value $182,776

Assessed Land Value $25,000
   
Assessed Total Value $207,776



Addition Summary 
StoryTypeCodeArea
1.00 GARAGE FRAME ATTACHED FINISHED GARF 280
1.00 PORCHSCREEN PORC 180
1.00 PORCH, OPEN PORC 9
 
Other Improvements 
 


Building Sketch
Photograph
Building Sketch Building Photo
(Click sketch for bigger image)