Building Summary

Data last updated on: 1/31/2026     Ownership current as of: 1/29/2026     Tax Year: 2026
REID 5553

PIN # 2712-53-9346

Location Address Property Description
2580 DAWN DR
   
Property Owner Owner's Mailing Address
ORR, MELISSA A;ORR, RANDY S
2580 DAWN DR
MORGANTON NC 28655
Parcel
Buildings
Misc Improvements
Land
Deeds
Notes
Sales
Photos
Tax Bill
Map
Building Location Address
2580 DAWN DR
Card   of  1
Building Details

Building Type SINGLE FAMILY RES
Building Use SNG FAM
Units 0
Living Area (SQFT) 2338
Number of Stories 1.00
Style RANCH
Foundation BRICK
Exterior BRICK VENEER
Const Type
Heating CENTRAL
Air Cond CENTRAL AC
Plumbing Baths (Full):   3
Baths (Half):   0
Extra Fixtures:   1
Total Plumbing Fixtures:   10 
Bedrooms 3
Floor VYNL TILE
Roof Cover ASPHALT SHINGLE
Roof Type DOUBLE PITCH
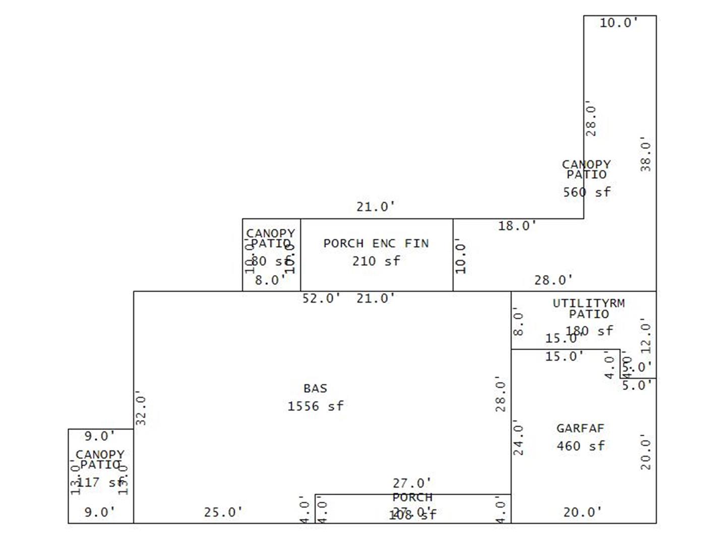
Main Body (SQFT) 1556
Building Description

Year Built 1976
Additions 13
Effective Year 1980
Remodeled 0
Interior Adj.
Other Features
Building Total & Improvement Details

Grade C 100%
Percentage Complete 100
Total Adjusted Replacement Cost New $319,407
Physical Depreciation (% Bad) 0%
Depreciated Value $178,868
Economic Depreciation (% Bad) 0%
Functional Depreciation (% Bad) 0%
Total Depreciated Value $178,868
Market Area Factor 1.20
Building Value $214,642
Misc Improvements Value $15,912
Total Improvement Value $230,554

Assessed Land Value $15,480
   
Assessed Total Value $246,034



Addition Summary 
StoryTypeCodeArea
1.00 PORCH, OPEN PORC 108
1.00 GARAGE FRAME ATTACHED FINISHED GARF 460
1.00 UTILITY ROOM UTIL 180
1.00 PORCH ENCLOSED FINISHED PORC 210
1.00 CANOPY ATTACHED CANO 80
1.00 CANOPY ATTACHED CANO 560
1.00 CANOPY ATTACHED CANO 117
1.00 PATIO, CONCRETE PATI 180
1.00 PATIO, CONCRETE PATI 80
1.00 PATIO, CONCRETE PATI 560
1.00 PATIO, CONCRETE PATI 117
1.00 BASEMENT UNFINISHED BSMT 782
1.00 BASEMENT FINISHED BSMT 782
 
Other Improvements 
UnitsDescriptionItemCodeYear% BadValue
16x32 DIMENSIONS POOL RESIDENTIAL VINYL 1983 75 2605
12x16 DIMENSIONS SHED FRAME 1963 75 672
38x14 DIMENSIONS SHOP WITH ELECTRICITY 1964 55 7421
24x20 DIMENSIONS CARPORT PREFAB W/FLOOR 2013 18 2558
12x32 DIMENSIONS CARPORT PREFAB W/FLOOR 2013 18 2047
69 SIZE GAZEBO 1990 51 609
 


Building Sketch
Photograph
Building Sketch Building Photo
(Click sketch for bigger image)