Building Summary

Data last updated on: 1/26/2026     Ownership current as of: 1/22/2026     Tax Year: 2026
REID 5230

PIN # 2712-09-7334

Location Address Property Description
2149 S STERLING ST PIZZA HUT
   
Property Owner Owner's Mailing Address
TUTERA, CARL;OATES CREEK OF FLORIDA LLC
1374 STANFIELD COVE
LAKE MARY FL 32746
Parcel
Buildings
Misc Improvements
Land
Deeds
Notes
Sales
Photos
Tax Bill
Map
Building Location Address
2149 S STERLING ST
Card   of  1        Section   of  1
Building Details

Building Name
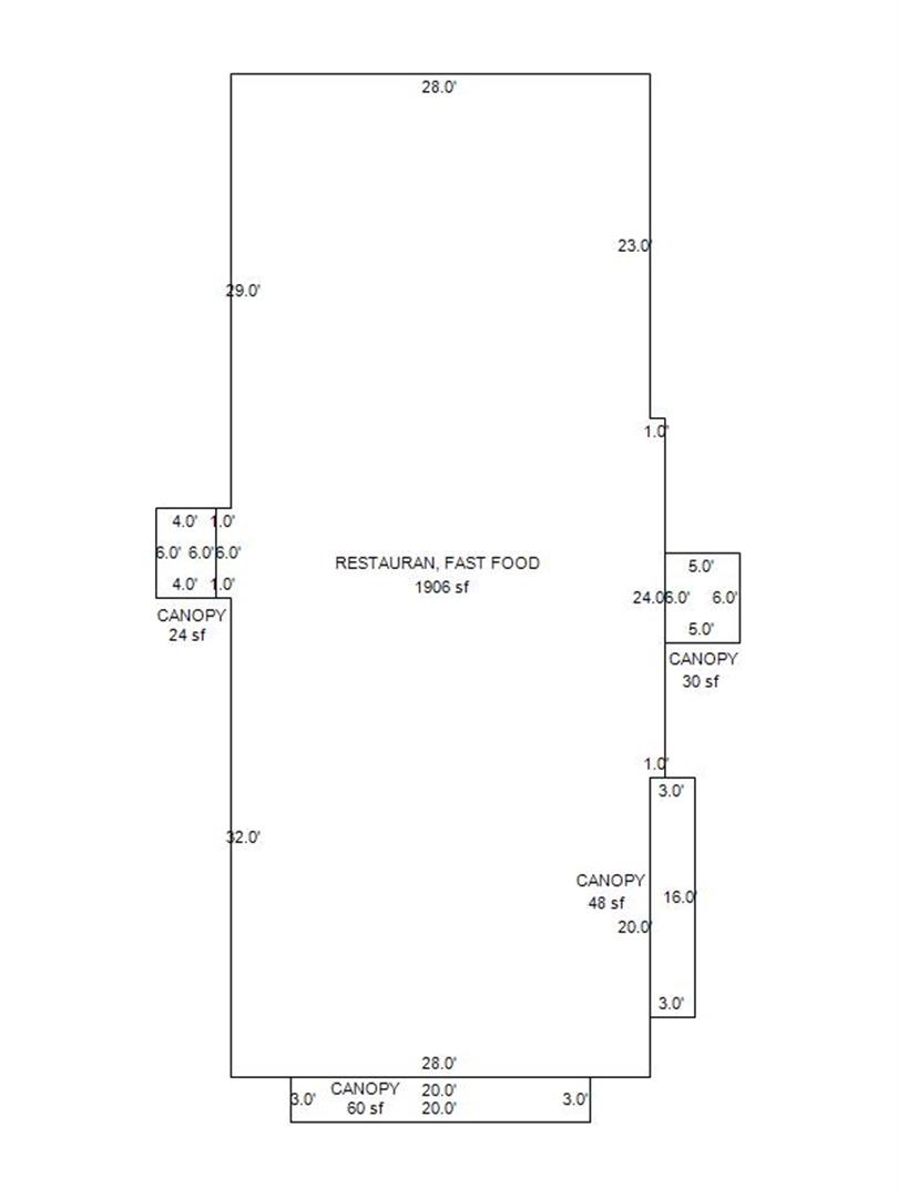
Primary Occupancy Type RESTAURANT
Primary Occupancy RESTAURAN FAST FOOD
Primary Class D
Primary Quality VERY GOOD PLUS 50
Year Built 2022
Effective Year 2022
Physical Depreciation (Rating) AVERAGE
Physical Depreciation (% Bad) 0.00%
Economic Depreciation (% Bad) 0%
Functional Depreciation (% Bad) 0%
Gross Leasable Area (SQFT) 1906
Remodeled Year
Total Stories 1

Section Details

Occupancy Type RESTAURANT


Air Conditioning CENTRAL AC
Additional Fixtures 2
Full Baths 0
Half Baths 2
Class D
Depreciation 0%
Depreciation AVERAGE
Floors CER/TILE
Foundation SLAB ABOVE GRADE
Heat CENTRAL
Interior Finish DRYWALL
Occupancy RESTAURAN FAST FOOD
Quality VERY GOOD PLUS 50
Roof Cover BUILT UP
Roof Structure WOOD FRAME
12
Building Total & Improvement Details

Total Adjusted Replacement Cost New $971,336
Physical Depreciation (% Bad) 0.00%
Depreciated Value $971,336
Economic Depreciation (% Bad) 0%
Functional Depreciation (% Bad) 0%
Total Depreciated Value $971,336
Market Area Factor 1.00
Building Value $971,336
Misc Improvements Value $22,680
Total Improvement Value $994,016

Assessed Land Value $295,610
   
Assessed Total Value $1,289,626


Addition Summary 
StoryTypeCodeArea
1.00 CANOPY ATTACHED CANO 24
1.00 CANOPY ATTACHED CANO 60
1.00 CANOPY ATTACHED CANO 48
1.00 CANOPY ATTACHED CANO 30
 
Other Improvements 
UnitsDescriptionItemCodeYear% BadValue
10000 SIZE PAVING ASPHALT 2022 6 18800
1000 SIZE PAVING CONCRETE 2022 3 3880
 


Building Sketch
Photograph
Building Sketch Building Photo
(Click sketch for bigger image)