Building Summary

Data last updated on: 4/3/2026     Ownership current as of: 4/1/2026     Tax Year: 2026
REID 4864

PIN # 2704-01-5909

Location Address Property Description
410 ALEXANDER AVE
   
Property Owner Owner's Mailing Address
BURGE, PATRICIA LEE;RAY, MARVIN DEXTER;RAY, PAULA BURGE
410 ALEXANDER AVE
MORGANTON NC 28655
Parcel
Buildings
Misc Improvements
Land
Deeds
Notes
Sales
Photos
Tax Bill
Map
Building Location Address
410 ALEXANDER AVE
Card   of  1
Building Details

Building Type SINGLE FAMILY RES
Building Use SNG FAM
Units 0
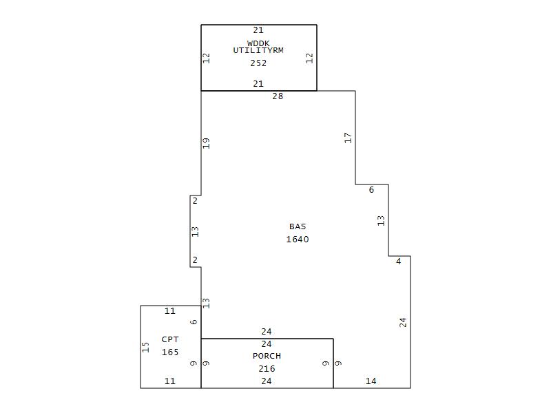
Living Area (SQFT) 1640
Number of Stories 1.00
Style BUNGALOW
Foundation BRICK
Exterior VINYL
Const Type
Heating CENTRAL
Air Cond CENTRAL AC
Plumbing Baths (Full):   2
Baths (Half):   0
Extra Fixtures:   0
Total Plumbing Fixtures:   6 
Bedrooms 4
Floor SOFTWOOD
Roof Cover ASPHALT SHINGLE
Roof Type DOUBLE PITCH
Main Body (SQFT) 1640
Building Description

Year Built 1927
Additions 5
Effective Year 1985
Remodeled 1981
Interior Adj.
Other Features
Building Total & Improvement Details

Grade C+8 108%
Percentage Complete 100
Total Adjusted Replacement Cost New $257,170
Physical Depreciation (% Bad) 0%
Depreciated Value $156,874
Economic Depreciation (% Bad) 0%
Functional Depreciation (% Bad) 0%
Total Depreciated Value $156,874
Market Area Factor 1.00
Building Value $156,874
Misc Improvements Value
Total Improvement Value $156,874

Assessed Land Value $21,600
   
Assessed Total Value $178,474



Addition Summary 
StoryTypeCodeArea
1.00 PORCH, OPEN PORC 216
1.00 CARPORT CPT 165
1.00 UTILITY ROOM UTIL 252
1.00 WOOD DECK WDDK 252
1.00 BASEMENT UNFINISHED BSMT 410
 
Other Improvements 
 


Building Sketch
Photograph
Building Sketch Building Photo
(Click sketch for bigger image)