Building Summary

Data last updated on: 2/15/2026     Ownership current as of: 2/12/2026     Tax Year: 2026
REID 49363

PIN # 1786-22-0437

Location Address Property Description
2784 HENDERSON MILL RD
   
Property Owner Owner's Mailing Address
MISENHEIMER, KELLY S
2784 HENDERSON MILL RD
MORGANTON NC 28655
Parcel
Buildings
Misc Improvements
Land
Deeds
Notes
Sales
Photos
Tax Bill
Map
Building Location Address
2784 HENDERSON MILL RD
Card   of  1
Building Details

Building Type SINGLE FAMILY RES
Building Use SNG FAM
Units 0
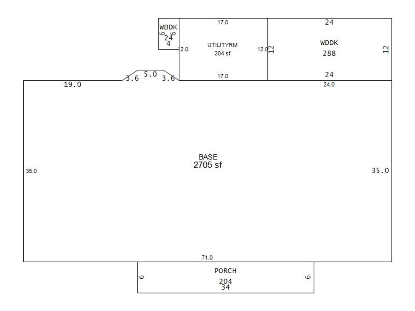
Living Area (SQFT) 2705
Number of Stories 1.00
Style RANCH
Foundation BRICK
Exterior BRICK VENEER
Const Type
Heating CENTRAL
Air Cond CENTRAL AC
Plumbing Baths (Full):   2
Baths (Half):   0
Extra Fixtures:   0
Total Plumbing Fixtures:   6 
Bedrooms 3
Floor HARDWOOD
Roof Cover ASPHALT SHINGLE
Roof Type HIP
Main Body (SQFT) 2705
Building Description

Year Built 1997
Additions 6
Effective Year 2000
Remodeled 0
Interior Adj.
Other Features
Building Total & Improvement Details

Grade B 122%
Percentage Complete 100
Total Adjusted Replacement Cost New $451,322
Physical Depreciation (% Bad) 0%
Depreciated Value $343,005
Economic Depreciation (% Bad) 0%
Functional Depreciation (% Bad) 0%
Total Depreciated Value $343,005
Market Area Factor 1.00
Building Value $343,005
Misc Improvements Value
Total Improvement Value $343,005

Assessed Land Value $27,813
   
Assessed Total Value $370,818



Addition Summary 
StoryTypeCodeArea
1.00 PORCH, OPEN PORC 204
1.00 WOOD DECK WDDK 288
1.00 WOOD DECK WDDK 24
1.00 UTILITY ROOM UTIL 204
1.00 BASEMENT UNFINISHED BSMT 1907
1.00 BASEMENT SEMI-FINISHED BSMT 594
 
Other Improvements 
 


Building Sketch
Photograph
Building Sketch Building Photo
(Click sketch for bigger image)