Building Summary

Data last updated on: 2/15/2026     Ownership current as of: 2/12/2026     Tax Year: 2026
REID 46285

PIN # 1786-32-9680

Location Address Property Description
2498 HENDERSON MILL RD
   
Property Owner Owner's Mailing Address
WOOD, THERESA L;SAIN, LEONARD W
2498 HENDERSON MILL RD
MORGANTON NC 28655
Parcel
Buildings
Misc Improvements
Land
Deeds
Notes
Sales
Photos
Tax Bill
Map
Building Location Address
2498 HENDERSON MILL RD
Card   of  1
Building Details

Building Type MFGD HOME MUL-SECT
Building Use MFG HOME MULTI SEC
Units 0
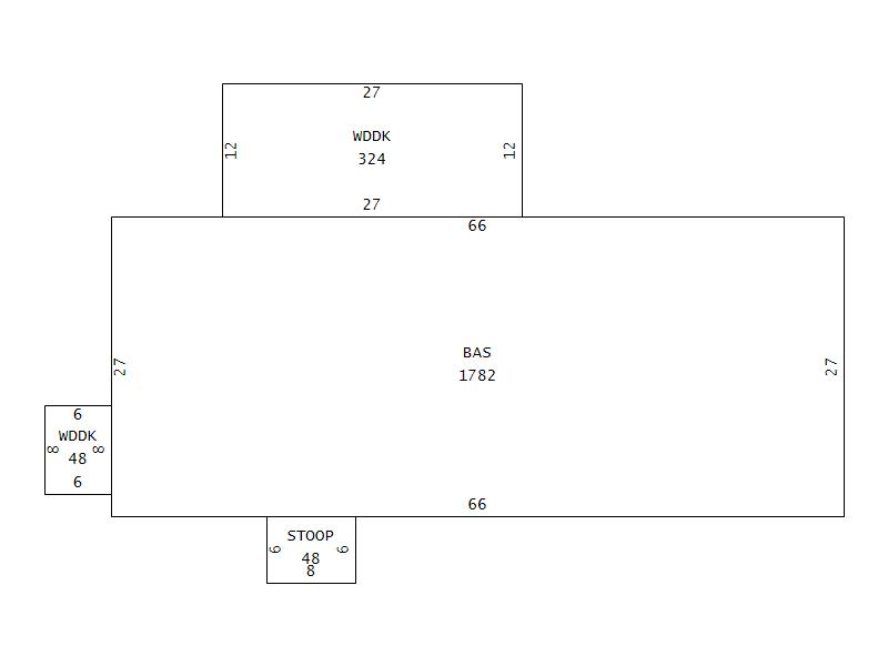
Living Area (SQFT) 1782
Number of Stories 1.00
Style MAN HOME MULT-SECT
Foundation CRAWL
Exterior VINYL
Const Type
Heating CENTRAL
Air Cond CENTRAL AC
Plumbing Baths (Full):   2
Baths (Half):   0
Extra Fixtures:   0
Total Plumbing Fixtures:   6 
Bedrooms 3
Floor VYNL TILE
Roof Cover ASPHALT SHINGLE
Roof Type DOUBLE PITCH
Main Body (SQFT) 1782
Building Description

Year Built 1990
Additions 3
Effective Year 1993
Remodeled 0
Interior Adj.
Other Features
Building Total & Improvement Details

Grade C 100%
Percentage Complete 100
Total Adjusted Replacement Cost New $154,716
Physical Depreciation (% Bad) 0%
Depreciated Value $58,792
Economic Depreciation (% Bad) 0%
Functional Depreciation (% Bad) 0%
Total Depreciated Value $58,792
Market Area Factor 1.00
Building Value $58,792
Misc Improvements Value $4,000
Total Improvement Value $62,792

Assessed Land Value $10,574
   
Assessed Total Value $73,366



Addition Summary 
StoryTypeCodeArea
1.00 WOOD DECK WDDK 324
1.00 STOOP MASONRY TERR STOO 48
1.00 WOOD DECK WDDK 48
 
Other Improvements 
UnitsDescriptionItemCodeYear% BadValue
1 SIZE SITE, MOBILE HOME GRADE E 2013 0 4000
 


Building Sketch
Photograph
Building Sketch Building Photo
(Click sketch for bigger image)