Building Summary

Data last updated on: 3/31/2026     Ownership current as of: 3/30/2026     Tax Year: 2026
REID 42433

PIN # 1794-65-2419

Location Address Property Description
103 RIVER RIDGE DR
   
Property Owner Owner's Mailing Address
REYNOLDS, GERALD;REYNOLDS, MARY
2924 EUDORA RD
EUSTIS FL 32726
Parcel
Buildings
Misc Improvements
Land
Deeds
Notes
Sales
Photos
Tax Bill
Map
Building Location Address
103 RIVER RIDGE DR
Card   of  1
Building Details

Building Type SINGLE FAMILY RES
Building Use SNG FAM
Units 0
Living Area (SQFT) 5199
Number of Stories 1.00
Style CONTEMP
Foundation CONCRETE BLOCK
Exterior FRAME
Const Type
Heating CENTRAL
Air Cond CENTRAL AC
Plumbing Baths (Full):   3
Baths (Half):   1
Extra Fixtures:   0
Total Plumbing Fixtures:   11 
Bedrooms 3
Floor CARPET
Roof Cover ASPHALT SHINGLE
Roof Type DOUBLE PITCH
Main Body (SQFT) 1544
Building Description

Year Built 1988
Additions 7
Effective Year 1990
Remodeled 0
Interior Adj.
Other Features
Building Total & Improvement Details

Grade A+8 162%
Percentage Complete 100
Total Adjusted Replacement Cost New $872,268
Physical Depreciation (% Bad) 0%
Depreciated Value $575,697
Economic Depreciation (% Bad) 0%
Functional Depreciation (% Bad) 0%
Total Depreciated Value $575,697
Market Area Factor 1.00
Building Value $575,697
Misc Improvements Value
Total Improvement Value $575,697

Assessed Land Value $63,359
   
Assessed Total Value $639,056



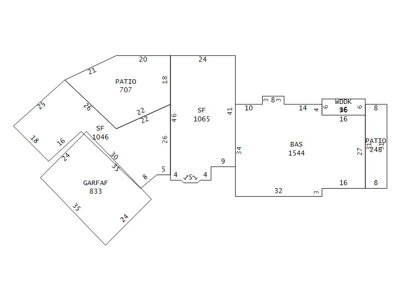
Addition Summary 
StoryTypeCodeArea
1.00 SINGLE FAMILY SF 1065
1.00 SINGLE FAMILY SF 1046
1.00 PATIO, CONCRETE PATI 707
1.00 GARAGE FRAME ATTACHED FINISHED GARF 833
1.00 PATIO, CONCRETE PATI 248
1.00 WOOD DECK WDDK 96
1.00 BASEMENT FINISHED BSMT 1544
 
Other Improvements 
 


Building Sketch
Photograph
Building Sketch Building Photo
(Click sketch for bigger image)