Building Summary

Data last updated on: 4/3/2026     Ownership current as of: 4/1/2026     Tax Year: 2026
REID 41947

PIN # 2772-24-6218

Location Address Property Description
3569 BERRY RD
   
Property Owner Owner's Mailing Address
MCNERNEY, DEBRA M
3569 BERRY RD
CONNELLY SPRINGS NC 28612
Parcel
Buildings
Misc Improvements
Land
Deeds
Notes
Sales
Photos
Tax Bill
Map
Building Location Address
3569 BERRY RD
Card   of  1
Building Details

Building Type MFGD HOME MUL-SECT
Building Use MFG HOME MULTI SEC
Units 0
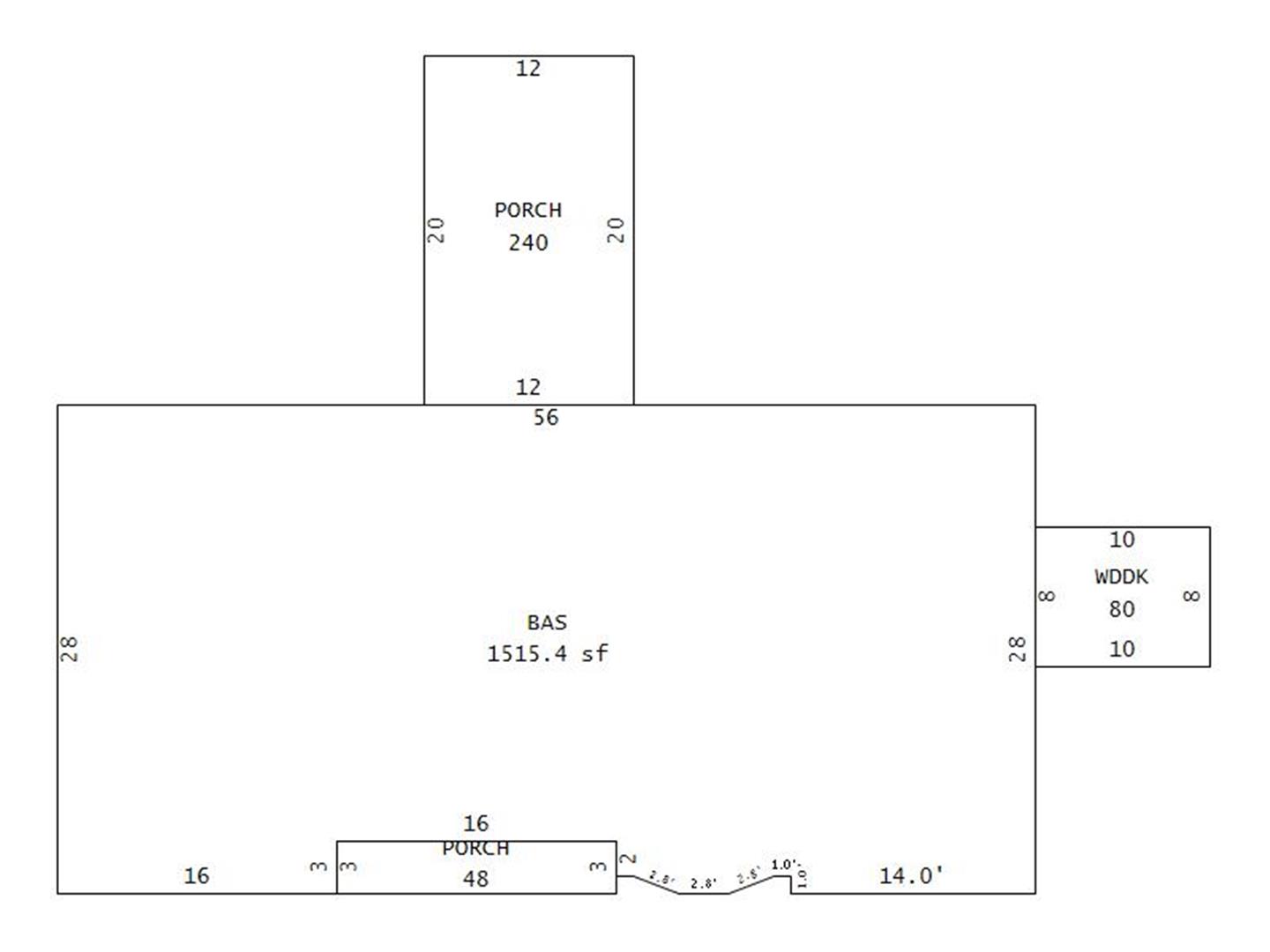
Living Area (SQFT) 1515
Number of Stories 1.00
Style MAN HOME MULT-SECT
Foundation STONE
Exterior VINYL
Const Type
Heating CENTRAL
Air Cond CENTRAL AC
Plumbing Baths (Full):   2
Baths (Half):   0
Extra Fixtures:   0
Total Plumbing Fixtures:   6 
Bedrooms 3
Floor VYNL TILE
Roof Cover ASPHALT SHINGLE
Roof Type DOUBLE PITCH
Main Body (SQFT) 1515
Building Description

Year Built 1984
Additions 3
Effective Year 1985
Remodeled 0
Interior Adj.
Other Features
Building Total & Improvement Details

Grade C+8 108%
Percentage Complete 100
Total Adjusted Replacement Cost New $151,998
Physical Depreciation (% Bad) 0%
Depreciated Value $30,400
Economic Depreciation (% Bad) 0%
Functional Depreciation (% Bad) 0%
Total Depreciated Value $30,400
Market Area Factor 1.35
Building Value $41,040
Misc Improvements Value $5,207
Total Improvement Value $46,247

Assessed Land Value $18,326
   
Assessed Total Value $64,573



Addition Summary 
StoryTypeCodeArea
1.00 PORCH, OPEN PORC 48
1.00 WOOD DECK WDDK 80
1.00 PORCH, OPEN PORC 240
 
Other Improvements 
UnitsDescriptionItemCodeYear% BadValue
12x14 DIMENSIONS SHED FRAME 1963 75 382
10x16 DIMENSIONS SHED FRAME 1963 75 364
10x6 DIMENSIONS LEAN TO 1963 75 51
1 SIZE SITE, MOBILE HOME GRADE E 2013 0 4000
10X12 DIMENSIONS SHED, METAL 1963 75 410
 


Building Sketch
Photograph
Building Sketch Building Photo
(Click sketch for bigger image)