Building Summary

Data last updated on: 1/31/2026     Ownership current as of: 1/29/2026     Tax Year: 2026
REID 41324

PIN # 2712-51-5884

Location Address Property Description
3820 LAURELWOOD RD
   
Property Owner Owner's Mailing Address
MIGUEL, FELIPE ISAIAS PASCUAL
3820 LAURELWOOD RD
MORGANTON NC 28655
Parcel
Buildings
Misc Improvements
Land
Deeds
Notes
Sales
Photos
Tax Bill
Map
Building Location Address
3820 LAURELWOOD RD
Card   of  1
Building Details

Building Type SINGLE FAMILY RES
Building Use SNG FAM
Units 0
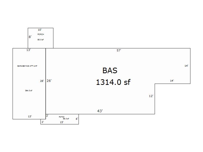
Living Area (SQFT) 1314
Number of Stories 1.00
Style CONVENTIONAL
Foundation CONCRETE BLOCK
Exterior BRICK VENEER
Const Type
Heating CENTRAL
Air Cond CENTRAL AC
Plumbing Baths (Full):   2
Baths (Half):   0
Extra Fixtures:   0
Total Plumbing Fixtures:   6 
Bedrooms 3
Floor VYNL TILE
Roof Cover ASPHALT SHINGLE
Roof Type DOUBLE PITCH
Main Body (SQFT) 1314
Building Description

Year Built 1958
Additions 4
Effective Year 1980
Remodeled 0
Interior Adj.
Other Features
Building Total & Improvement Details

Grade C 100%
Percentage Complete 100
Total Adjusted Replacement Cost New $205,468
Physical Depreciation (% Bad) 0%
Depreciated Value $115,062
Economic Depreciation (% Bad) 0%
Functional Depreciation (% Bad) 0%
Total Depreciated Value $115,062
Market Area Factor 1.20
Building Value $138,074
Misc Improvements Value $3,174
Total Improvement Value $141,248

Assessed Land Value $24,923
   
Assessed Total Value $166,171



Addition Summary 
StoryTypeCodeArea
1.00 PATIO, CONCRETE PATI 56
1.00 GARAGE MASONRY ATTATCHED UNF GARM 364
1.00 PORCH, OPEN PORC 80
1.00 BASEMENT UNFINISHED BSMT 1118
 
Other Improvements 
UnitsDescriptionItemCodeYear% BadValue
18x20 DIMENSIONS CARPORT PREFAB W/FLOOR 2013 18 1919
6x8 DIMENSIONS SHED, METAL 2010 21 518
8X8 DIMENSIONS GAZEBO 2000 36 737
 


Building Sketch
Photograph
Building Sketch Building Photo
(Click sketch for bigger image)