Building Summary

Data last updated on: 2/15/2026     Ownership current as of: 2/12/2026     Tax Year: 2026
REID 40070

PIN # 1786-42-8565

Location Address Property Description
2395 HENDERSON MILL RD
   
Property Owner Owner's Mailing Address
HERNANDEZ, MARVIN ABEL JIMENEZ;LICONA, ALBA RUTH ZALDIVAR
2395 HENDERSON MILL RD
MORGANTON NC 28655
Parcel
Buildings
Misc Improvements
Land
Deeds
Notes
Sales
Photos
Tax Bill
Map
Building Location Address
2395 HENDERSON MILL RD
Card   of  1
Building Details

Building Type SINGLE FAMILY RES
Building Use SNG FAM
Units 0
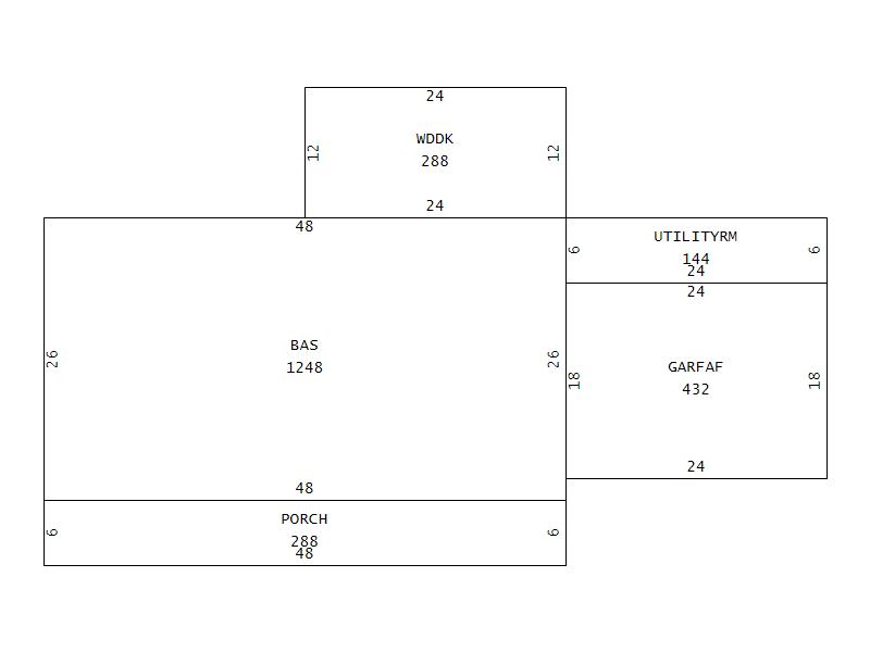
Living Area (SQFT) 1248
Number of Stories 1.00
Style RANCH
Foundation BRICK
Exterior FRAME
Const Type
Heating CENTRAL
Air Cond CENTRAL AC
Plumbing Baths (Full):   2
Baths (Half):   0
Extra Fixtures:   0
Total Plumbing Fixtures:   6 
Bedrooms 3
Floor CARPET
Roof Cover ASPHALT SHINGLE
Roof Type DOUBLE PITCH
Main Body (SQFT) 1248
Building Description

Year Built 1984
Additions 5
Effective Year 1985
Remodeled 0
Interior Adj.
Other Features
Building Total & Improvement Details

Grade C-8 92%
Percentage Complete 100
Total Adjusted Replacement Cost New $210,644
Physical Depreciation (% Bad) 0%
Depreciated Value $128,493
Economic Depreciation (% Bad) 0%
Functional Depreciation (% Bad) 0%
Total Depreciated Value $128,493
Market Area Factor 1.00
Building Value $128,493
Misc Improvements Value $1,069
Total Improvement Value $129,562

Assessed Land Value $17,914
   
Assessed Total Value $147,476



Addition Summary 
StoryTypeCodeArea
1.00 PORCH, OPEN PORC 288
1.00 GARAGE FRAME ATTACHED FINISHED GARF 432
1.00 UTILITY ROOM UTIL 144
1.00 WOOD DECK WDDK 288
1.00 BASEMENT UNFINISHED BSMT 1248
 
Other Improvements 
UnitsDescriptionItemCodeYear% BadValue
12x14 DIMENSIONS POLE BUILDING 4 SIDES OPEN NO FLOOR 2025 8 548
10x16 DIMENSIONS POLE BUILDING 4 SIDES OPEN NO FLOOR 2023 8 521
 


Building Sketch
Photograph
Building Sketch Building Photo
(Click sketch for bigger image)