Building Summary

Data last updated on: 4/4/2026     Ownership current as of: 4/1/2026     Tax Year: 2026
REID 39808

PIN # 2713-58-5770

Location Address Property Description
2565 PRIMROSE DR
   
Property Owner Owner's Mailing Address
VONA, MARGARET A
2565 PRIMROSE DR
MORGANTON NC 28655
Parcel
Buildings
Misc Improvements
Land
Deeds
Notes
Sales
Photos
Tax Bill
Map
Building Location Address
2565 PRIMROSE DR
Card   of  1
Building Details

Building Type SINGLE FAMILY RES
Building Use SNG FAM
Units 0
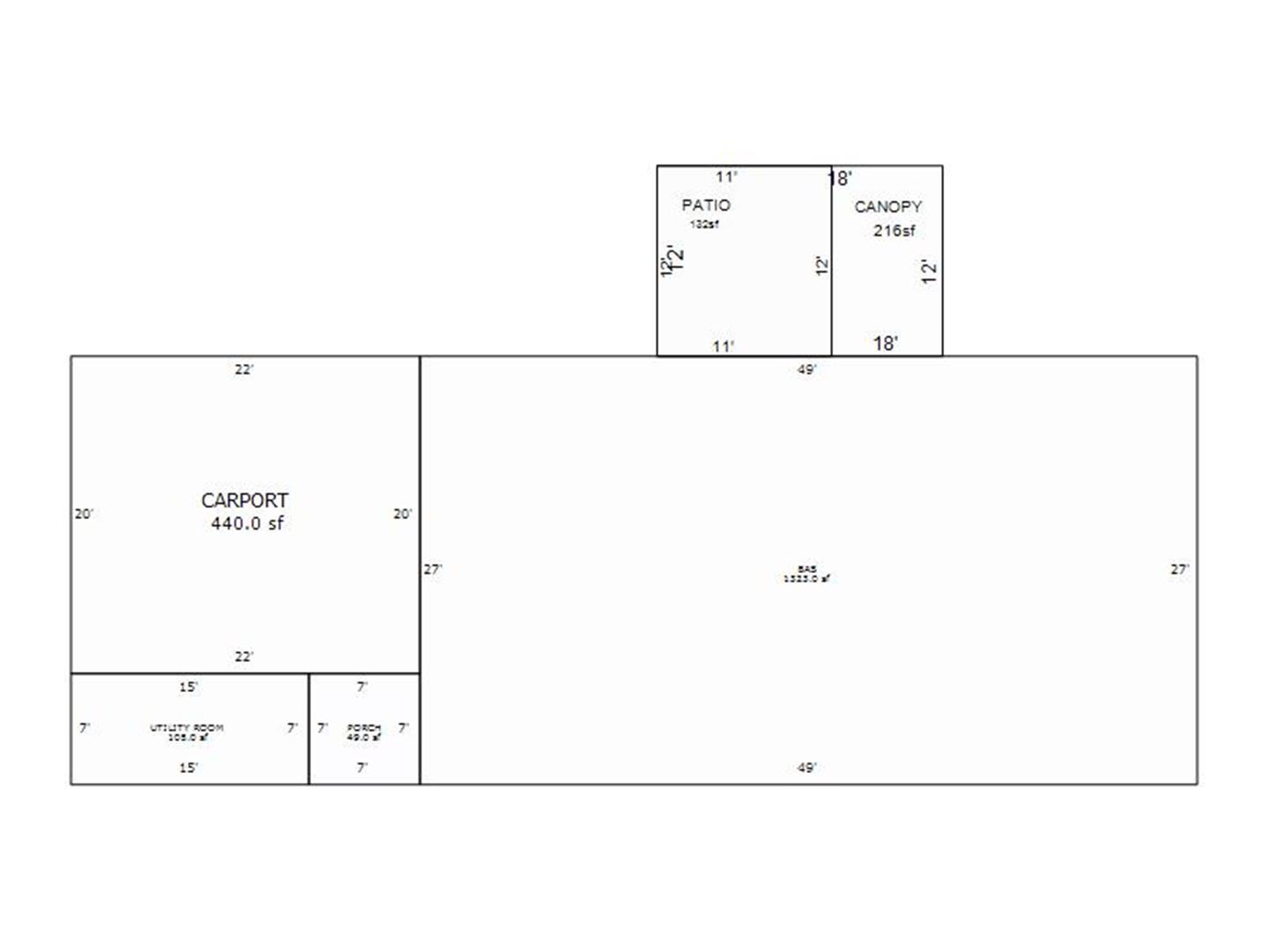
Living Area (SQFT) 1323
Number of Stories 1.00
Style RANCH
Foundation CRAWL
Exterior BRICK VENEER
Const Type
Heating CENTRAL
Air Cond CENTRAL AC
Plumbing Baths (Full):   2
Baths (Half):   0
Extra Fixtures:   0
Total Plumbing Fixtures:   6 
Bedrooms 2
Floor CARPET
Roof Cover ASPHALT SHINGLE
Roof Type DOUBLE PITCH
Main Body (SQFT) 1323
Building Description

Year Built 1984
Additions 5
Effective Year 1990
Remodeled 0
Interior Adj.
Other Features
Building Total & Improvement Details

Grade C+8 108%
Percentage Complete 100
Total Adjusted Replacement Cost New $208,000
Physical Depreciation (% Bad) 0%
Depreciated Value $137,280
Economic Depreciation (% Bad) 0%
Functional Depreciation (% Bad) 0%
Total Depreciated Value $137,280
Market Area Factor 1.00
Building Value $137,280
Misc Improvements Value $1,093
Total Improvement Value $138,373

Assessed Land Value $22,090
   
Assessed Total Value $160,463



Addition Summary 
StoryTypeCodeArea
1.00 PORCH, OPEN PORC 49
1.00 CARPORT CPT 440
1.00 UTILITY ROOM UTIL 105
1.00 PATIO, CONCRETE PATI 132
1.00 CANOPY ATTACHED CANO 216
 
Other Improvements 
UnitsDescriptionItemCodeYear% BadValue
10x20 DIMENSIONS SHED, METAL 1984 60 1093
 


Building Sketch
Photograph
Building Sketch Building Photo
(Click sketch for bigger image)