Building Summary

Data last updated on: 4/4/2026     Ownership current as of: 4/1/2026     Tax Year: 2026
REID 37451

PIN # 2713-48-8132

Location Address Property Description
136 SUMMERS RD
   
Property Owner Owner's Mailing Address
SMITH, SERRA B;SMITH, LORI B;SMITH, AARON A
136 SUMMERS RD
MORGANTON NC 28655
Parcel
Buildings
Misc Improvements
Land
Deeds
Notes
Sales
Photos
Tax Bill
Map
Building Location Address
136 SUMMERS RD
Card   of  1
Building Details

Building Type SINGLE FAMILY RES
Building Use SNG FAM
Units 0
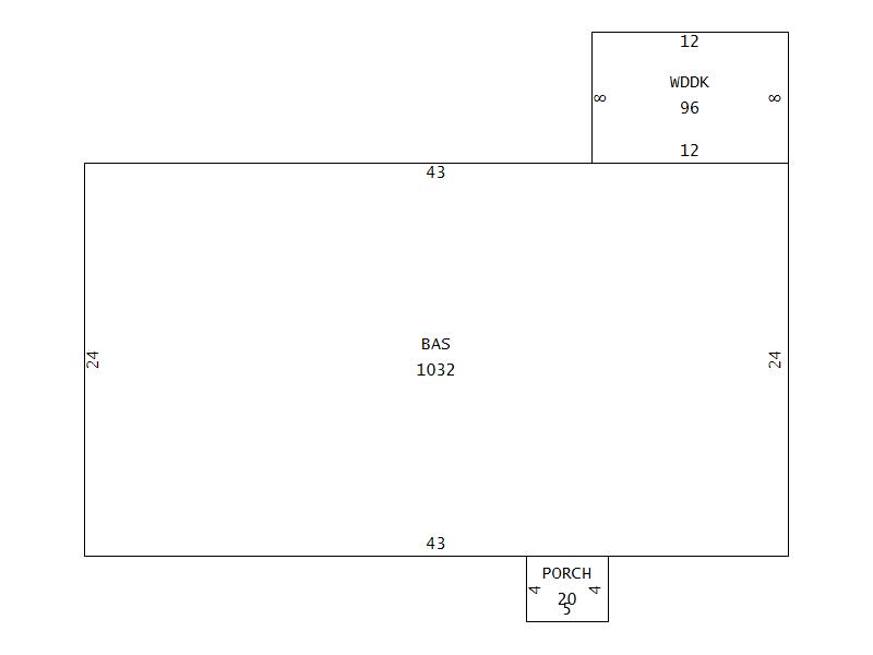
Living Area (SQFT) 1075
Number of Stories 1.00
Style RANCH
Foundation BRICK
Exterior BRICK VENEER
Const Type
Heating FLOOR FURNACE
Air Cond CENTRAL AC
Plumbing Baths (Full):   1
Baths (Half):   0
Extra Fixtures:   0
Total Plumbing Fixtures:   3 
Bedrooms 3
Floor VYNL TILE
Roof Cover ASPHALT SHINGLE
Roof Type DOUBLE PITCH
Main Body (SQFT) 1075
Building Description

Year Built 1982
Additions 3
Effective Year 1985
Remodeled 0
Interior Adj.
Other Features
Building Total & Improvement Details

Grade C+8 108%
Percentage Complete 100
Total Adjusted Replacement Cost New $178,345
Physical Depreciation (% Bad) 0%
Depreciated Value $108,790
Economic Depreciation (% Bad) 0%
Functional Depreciation (% Bad) 0%
Total Depreciated Value $108,790
Market Area Factor 1.00
Building Value $108,790
Misc Improvements Value $2,607
Total Improvement Value $111,397

Assessed Land Value $27,223
   
Assessed Total Value $138,620



Addition Summary 
StoryTypeCodeArea
1.00 WOOD DECK WDDK 152
1.00 WOOD DECK WDDK 55
1.00 BASEMENT UNFINISHED BSMT 1075
 
Other Improvements 
UnitsDescriptionItemCodeYear% BadValue
12X16 DIMENSIONS SHED FRAME 2023 3 2607
 


Building Sketch
Photograph
Building Sketch Building Photo
(Click sketch for bigger image)