Building Summary

Data last updated on: 3/30/2026     Ownership current as of: 3/27/2026     Tax Year: 2026
REID 35849

PIN # 1794-55-6658

Location Address Property Description
108 PARKLAND ST
   
Property Owner Owner's Mailing Address
WALKER, BRADLEY;WALKER, AMY
108 PARKLAND ST
MORGANTON NC 28655
Parcel
Buildings
Misc Improvements
Land
Deeds
Notes
Sales
Photos
Tax Bill
Map
Building Location Address
108 PARKLAND ST
Card   of  1
Building Details

Building Type SINGLE FAMILY RES
Building Use SNG FAM
Units 0
Living Area (SQFT) 3478
Number of Stories 1.75
Style COLONIAL
Foundation BRICK
Exterior BRICK VENEER
Const Type
Heating CENTRAL
Air Cond CENTRAL AC
Plumbing Baths (Full):   2
Baths (Half):   1
Extra Fixtures:   0
Total Plumbing Fixtures:   8 
Bedrooms 4
Floor VYNL TILE
Roof Cover ASPHALT SHINGLE
Roof Type DOUBLE PITCH
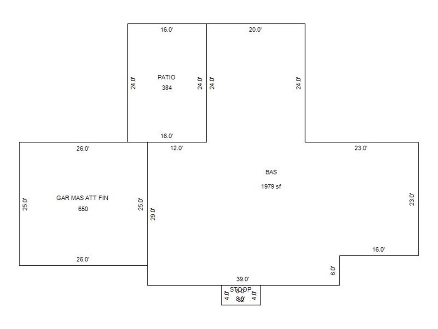
Main Body (SQFT) 1979
Building Description

Year Built 1991
Additions 5
Effective Year 2000
Remodeled 0
Interior Adj.
Other Features
Building Total & Improvement Details

Grade A 150%
Percentage Complete 100
Total Adjusted Replacement Cost New $616,747
Physical Depreciation (% Bad) 0%
Depreciated Value $499,565
Economic Depreciation (% Bad) 0%
Functional Depreciation (% Bad) 0%
Total Depreciated Value $499,565
Market Area Factor 1.00
Building Value $499,565
Misc Improvements Value
Total Improvement Value $499,565

Assessed Land Value $53,096
   
Assessed Total Value $552,661



Addition Summary 
StoryTypeCodeArea
1.00 STOOP MASONRY TERR STOO 32
1.00 GARAGE MASONRY ATTATCHED FINISHED GARM 650
1.00 PATIO, CONCRETE PATI 384
1.00 BASEMENT UNFINISHED BSMT 1499
1.00 FINISHED UPPER STORY FINU 1499
 
Other Improvements 
 


Building Sketch
Photograph
Building Sketch Building Photo
(Click sketch for bigger image)