Building Summary

Data last updated on: 3/31/2026     Ownership current as of: 3/30/2026     Tax Year: 2026
REID 35845

PIN # 1794-55-2064

Location Address Property Description
201 LOST CORNER RD
   
Property Owner Owner's Mailing Address
STRATER, JAMES WILLIAM JR;STRATER, DONNA JEAN
104 N GREEN ST, STE 316
MORGANTON NC 28655
Parcel
Buildings
Misc Improvements
Land
Deeds
Notes
Sales
Photos
Tax Bill
Map
Building Location Address
201 LOST CORNER RD
Card   of  1
Building Details

Building Type SINGLE FAMILY RES
Building Use SNG FAM
Units 0
Living Area (SQFT) 3192
Number of Stories 1.75
Style COLONIAL
Foundation BRICK
Exterior FRAME
Const Type
Heating CENTRAL
Air Cond CENTRAL AC
Plumbing Baths (Full):   3
Baths (Half):   1
Extra Fixtures:   2
Total Plumbing Fixtures:   13 
Bedrooms 3
Floor HARDWOOD
Roof Cover ASPHALT SHINGLE
Roof Type DOUBLE PITCH
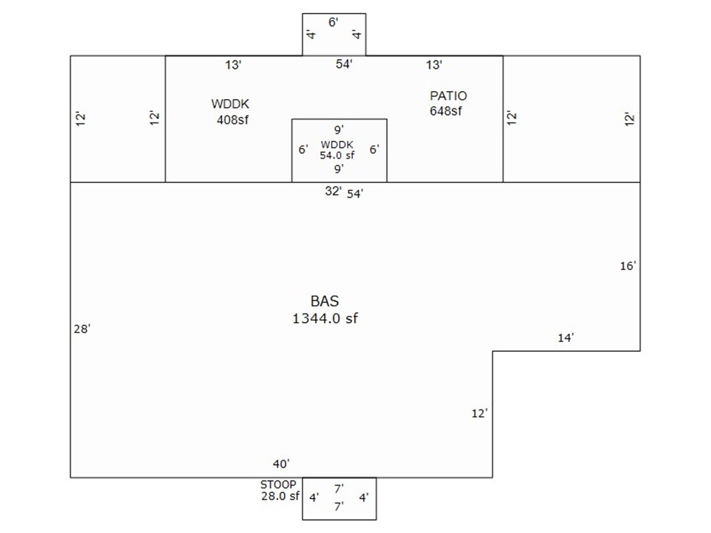
Main Body (SQFT) 1344
Building Description

Year Built 1986
Additions 7
Effective Year 2000
Remodeled 0
Interior Adj.
Other Features
Building Total & Improvement Details

Grade A-8 138%
Percentage Complete 100
Total Adjusted Replacement Cost New $487,903
Physical Depreciation (% Bad) 0%
Depreciated Value $370,806
Economic Depreciation (% Bad) 0%
Functional Depreciation (% Bad) 0%
Total Depreciated Value $370,806
Market Area Factor 1.00
Building Value $370,806
Misc Improvements Value $3,093
Total Improvement Value $373,899

Assessed Land Value $53,240
   
Assessed Total Value $427,139



Addition Summary 
StoryTypeCodeArea
1.00 STOOP MASONRY TERR STOO 28
2.00 WOOD DECK WDDK 54
1.00 PATIO, CONCRETE PATI 648
1.00 WOOD DECK WDDK 408
1.00 BASEMENT UNFINISHED BSMT 616
1.00 BASEMENT FINISHED BSMT 728
1.00 FINISHED UPPER STORY FINU 1120
 
Other Improvements 
UnitsDescriptionItemCodeYear% BadValue
16x38 DIMENSIONS POOL RESIDENTIAL VINYL 1988 75 3093
 


Building Sketch
Photograph
Building Sketch Building Photo
(Click sketch for bigger image)