Building Summary

Data last updated on: 3/31/2026     Ownership current as of: 3/30/2026     Tax Year: 2026
REID 35844

PIN # 1794-55-4155

Location Address Property Description
203 LOST CORNER RD
   
Property Owner Owner's Mailing Address
HIPPLE, JOHN J;HIPPLE, SHARLENE B
203 LOST CORNER RD
MORGANTON NC 28655
Parcel
Buildings
Misc Improvements
Land
Deeds
Notes
Sales
Photos
Tax Bill
Map
Building Location Address
203 LOST CORNER RD
Card   of  1
Building Details

Building Type SINGLE FAMILY RES
Building Use SNG FAM
Units 0
Living Area (SQFT) 3280
Number of Stories 1.00
Style RANCH
Foundation BRICK
Exterior BRICK VENEER
Const Type
Heating CENTRAL
Air Cond CENTRAL AC
Plumbing Baths (Full):   3
Baths (Half):   1
Extra Fixtures:   0
Total Plumbing Fixtures:   11 
Bedrooms 3
Floor CARPET
Roof Cover ASPHALT SHINGLE
Roof Type HIP
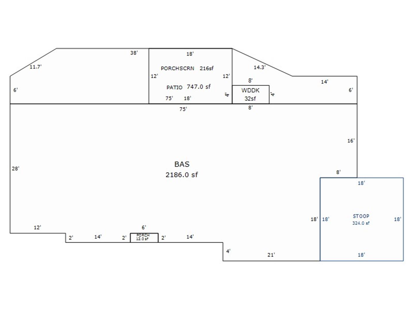
Main Body (SQFT) 2186
Building Description

Year Built 1986
Additions 7
Effective Year 1995
Remodeled 0
Interior Adj.
Other Features
Building Total & Improvement Details

Grade A-8 138%
Percentage Complete 100
Total Adjusted Replacement Cost New $503,185
Physical Depreciation (% Bad) 0%
Depreciated Value $357,261
Economic Depreciation (% Bad) 0%
Functional Depreciation (% Bad) 0%
Total Depreciated Value $357,261
Market Area Factor 1.00
Building Value $357,261
Misc Improvements Value
Total Improvement Value $357,261

Assessed Land Value $52,973
   
Assessed Total Value $410,234



Addition Summary 
StoryTypeCodeArea
1.00 PORCH, OPEN PORC 12
1.00 PORCHSCREEN PORC 216
1.00 PATIO, CONCRETE PATI 747
1.00 STOOP MASONRY TERR STOO 324
1.00 WOOD DECK WDDK 32
1.00 BASEMENT UNFINISHED BSMT 1092
1.00 BASEMENT FINISHED BSMT 1094
 
Other Improvements 
 


Building Sketch
Photograph
Building Sketch Building Photo
(Click sketch for bigger image)