Building Summary

Data last updated on: 3/31/2026     Ownership current as of: 3/30/2026     Tax Year: 2026
REID 35826

PIN # 1794-45-7043

Location Address Property Description
101 LOST CORNER RD
   
Property Owner Owner's Mailing Address
WALKER, M. SCOTT;WALKER, FRANCES C
101 LOST CORNER RD
MORGANTON NC 28655
Parcel
Buildings
Misc Improvements
Land
Deeds
Notes
Sales
Photos
Tax Bill
Map
Building Location Address
101 LOST CORNER RD
Card   of  1
Building Details

Building Type SINGLE FAMILY RES
Building Use SNG FAM
Units 0
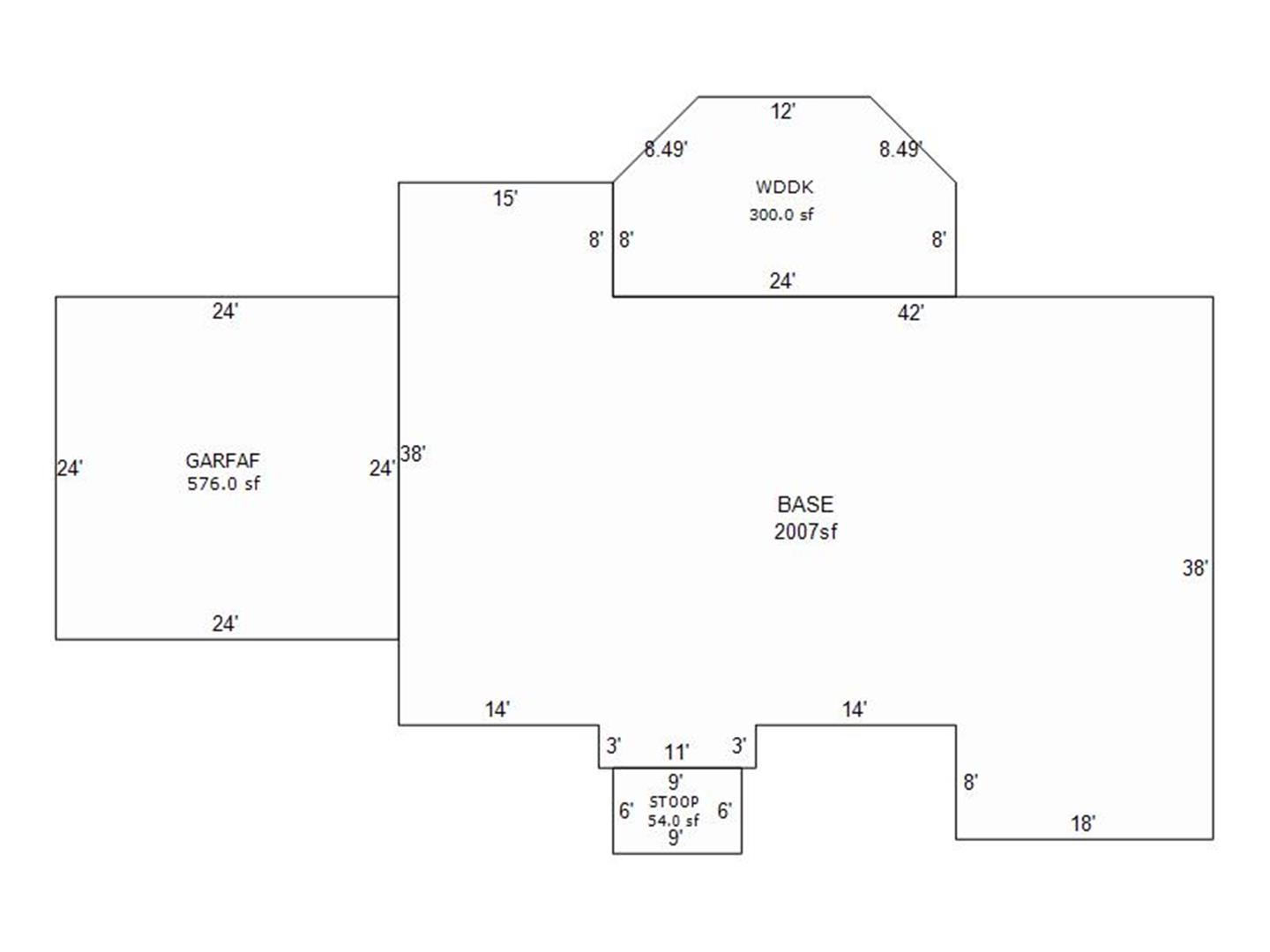
Living Area (SQFT) 3116
Number of Stories 1.75
Style CONVENTIONAL
Foundation CONCRETE BLOCK
Exterior STUCCO FRAME
Const Type
Heating CENTRAL
Air Cond CENTRAL AC
Plumbing Baths (Full):   2
Baths (Half):   1
Extra Fixtures:   3
Total Plumbing Fixtures:   11 
Bedrooms 4
Floor HARDWOOD
Roof Cover ASPHALT SHINGLE
Roof Type DOUBLE PITCH
Main Body (SQFT) 2007
Building Description

Year Built 1991
Additions 5
Effective Year 2000
Remodeled 0
Interior Adj.
Other Features
Building Total & Improvement Details

Grade A+8 162%
Percentage Complete 100
Total Adjusted Replacement Cost New $605,650
Physical Depreciation (% Bad) 0%
Depreciated Value $460,294
Economic Depreciation (% Bad) 0%
Functional Depreciation (% Bad) 0%
Total Depreciated Value $460,294
Market Area Factor 1.00
Building Value $460,294
Misc Improvements Value
Total Improvement Value $460,294

Assessed Land Value $58,978
   
Assessed Total Value $519,272



Addition Summary 
StoryTypeCodeArea
1.00 STOOP MASONRY TERR STOO 54
1.00 GARAGE FRAME ATTACHED FINISHED GARF 576
1.00 WOOD DECK WDDK 300
1.00 BASEMENT UNFINISHED BSMT 570
1.00 FINISHED UPPER STORY FINU 1109
 
Other Improvements 
 


Building Sketch
Photograph
Building Sketch Building Photo
(Click sketch for bigger image)