Building Summary

Data last updated on: 4/3/2026     Ownership current as of: 4/1/2026     Tax Year: 2026
REID 27580

PIN # 2752-99-6902

Location Address Property Description
3004 BEREA CHURCH RD
   
Property Owner Owner's Mailing Address
HOLLAND, PHILLIP R;HOLLAND, KASEY B
3004 BEREA CHURCH RD
CONNELLY SPRINGS NC 28612
Parcel
Buildings
Misc Improvements
Land
Deeds
Notes
Sales
Photos
Tax Bill
Map
Building Location Address
3004 BEREA CHURCH RD
Card   of  1
Building Details

Building Type SINGLE FAMILY RES
Building Use SNG FAM
Units 0
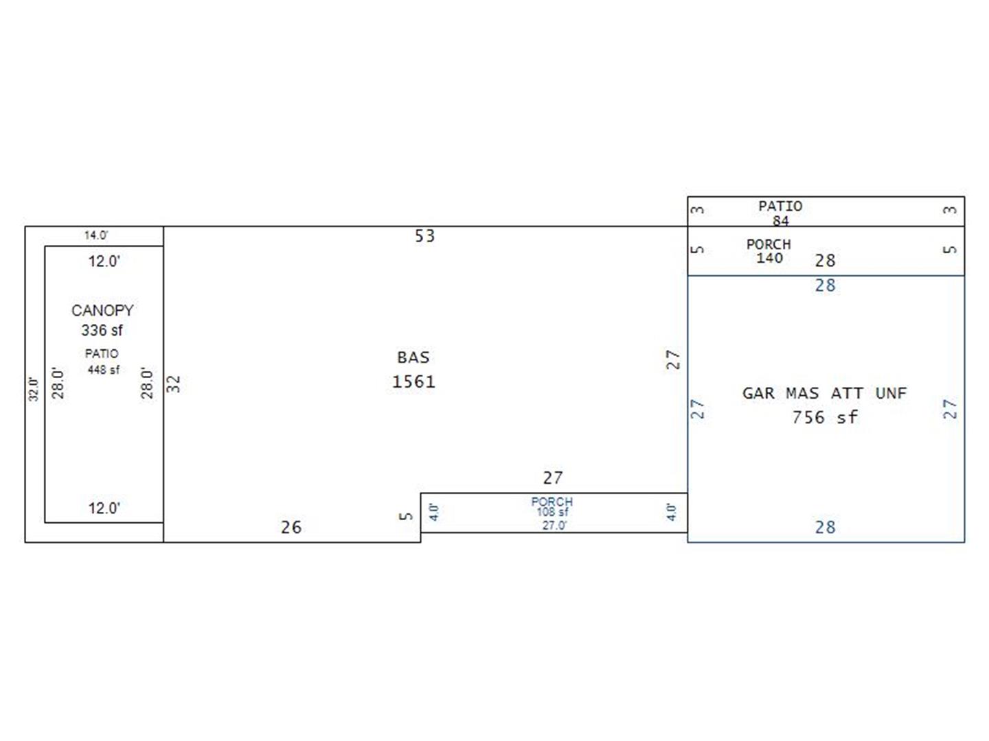
Living Area (SQFT) 1561
Number of Stories 1.00
Style RANCH
Foundation BRICK
Exterior BRICK VENEER
Const Type
Heating CENTRAL
Air Cond CENTRAL AC
Plumbing Baths (Full):   3
Baths (Half):   1
Extra Fixtures:   0
Total Plumbing Fixtures:   11 
Bedrooms 3
Floor VYNL TILE
Roof Cover ASPHALT SHINGLE
Roof Type DOUBLE PITCH
Main Body (SQFT) 1561
Building Description

Year Built 1979
Additions 7
Effective Year 1985
Remodeled 0
Interior Adj.
Other Features
Building Total & Improvement Details

Grade C 100%
Percentage Complete 100
Total Adjusted Replacement Cost New $270,736
Physical Depreciation (% Bad) 0%
Depreciated Value $165,149
Economic Depreciation (% Bad) 0%
Functional Depreciation (% Bad) 0%
Total Depreciated Value $165,149
Market Area Factor 1.35
Building Value $222,951
Misc Improvements Value $3,718
Total Improvement Value $226,669

Assessed Land Value $28,214
   
Assessed Total Value $254,883



Addition Summary 
StoryTypeCodeArea
1.00 PATIO, CONCRETE PATI 84
1.00 PORCH, OPEN PORC 140
1.00 GARAGE MASONRY ATTATCHED UNF GARM 756
1.00 PORCH, OPEN PORC 108
1.00 CANOPY ATTACHED CANO 336
1.00 PATIO, CONCRETE PATI 448
1.00 BASEMENT UNFINISHED BSMT 1561
 
Other Improvements 
UnitsDescriptionItemCodeYear% BadValue
10X8 DIMENSIONS SHED FRAME 2022 3 1086
10X20 DIMENSIONS SHED FRAME 2020 6 2632
 


Building Sketch
Photograph
Building Sketch Building Photo
(Click sketch for bigger image)