Building Summary

Data last updated on: 4/5/2026     Ownership current as of: 4/1/2026     Tax Year: 2026
REID 26843

PIN # 2772-05-7905

Location Address Property Description
8063 EVANS AVE
   
Property Owner Owner's Mailing Address
GREENE PROPERTIES, LLC
1830 1ST AVE SW
HICKORY NC 28602
Parcel
Buildings
Misc Improvements
Land
Deeds
Notes
Sales
Photos
Tax Bill
Map
Building Location Address
8063 EVANS AVE
Card   of  1
Building Details

Building Type SINGLE FAMILY RES
Building Use SNG FAM
Units 0
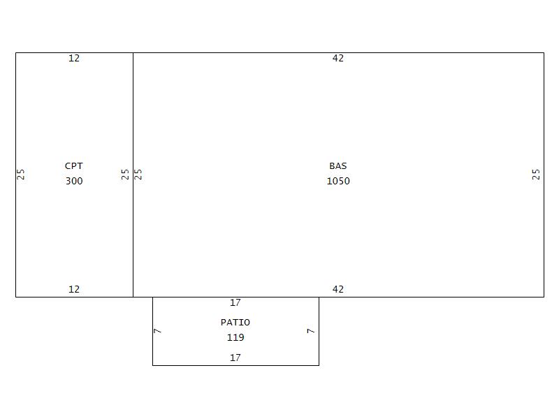
Living Area (SQFT) 1050
Number of Stories 1.00
Style RANCH
Foundation BRICK
Exterior BRICK VENEER
Const Type
Heating CENTRAL
Air Cond CENTRAL AC
Plumbing Baths (Full):   1
Baths (Half):   0
Extra Fixtures:   0
Total Plumbing Fixtures:   3 
Bedrooms 3
Floor HARDWOOD
Roof Cover ASPHALT SHINGLE
Roof Type DOUBLE PITCH
Main Body (SQFT) 1050
Building Description

Year Built 1963
Additions 3
Effective Year 1970
Remodeled 0
Interior Adj.
Other Features
Building Total & Improvement Details

Grade C 100%
Percentage Complete 100
Total Adjusted Replacement Cost New $163,328
Physical Depreciation (% Bad) 0%
Depreciated Value $75,131
Economic Depreciation (% Bad) 0%
Functional Depreciation (% Bad) 0%
Total Depreciated Value $75,131
Market Area Factor 1.35
Building Value $101,427
Misc Improvements Value
Total Improvement Value $101,427

Assessed Land Value $11,070
   
Assessed Total Value $112,497



Addition Summary 
StoryTypeCodeArea
1.00 PATIO, CONCRETE PATI 119
1.00 CARPORT CPT 300
1.00 BASEMENT UNFINISHED BSMT 1050
 
Other Improvements 
 


Building Sketch
Photograph
Building Sketch Building Photo
(Click sketch for bigger image)