Building Summary

Data last updated on: 1/31/2026     Ownership current as of: 1/29/2026     Tax Year: 2026
REID 2563

PIN # 2712-62-0670

Location Address Property Description
2546 HOLLY HILLS AVE
   
Property Owner Owner's Mailing Address
ANDRES, MIGUEL J;JIMENEZ, LISA G;TUM-TOJIN, MYNOR TUM
2546 HOLLY HILLS AVE
MORGANTON NC 28655
Parcel
Buildings
Misc Improvements
Land
Deeds
Notes
Sales
Photos
Tax Bill
Map
Building Location Address
2546 HOLLY HILLS AVE
Card   of  1
Building Details

Building Type SINGLE FAMILY RES
Building Use SNG FAM
Units 0
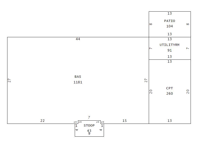
Living Area (SQFT) 1181
Number of Stories 1.00
Style RANCH
Foundation CRAWL
Exterior BRICK VENEER
Const Type
Heating CENTRAL
Air Cond CENTRAL AC
Plumbing Baths (Full):   1
Baths (Half):   0
Extra Fixtures:   0
Total Plumbing Fixtures:   3 
Bedrooms 3
Floor VYNL TILE
Roof Cover METAL
Roof Type DOUBLE PITCH
Main Body (SQFT) 1181
Building Description

Year Built 1964
Additions 4
Effective Year 1985
Remodeled 0
Interior Adj.
Other Features
Building Total & Improvement Details

Grade C 100%
Percentage Complete 100
Total Adjusted Replacement Cost New $162,119
Physical Depreciation (% Bad) 0%
Depreciated Value $98,893
Economic Depreciation (% Bad) 0%
Functional Depreciation (% Bad) 0%
Total Depreciated Value $98,893
Market Area Factor 1.20
Building Value $118,672
Misc Improvements Value $8,171
Total Improvement Value $126,843

Assessed Land Value $12,960
   
Assessed Total Value $139,803



Addition Summary 
StoryTypeCodeArea
1.00 CARPORT CPT 260
1.00 STOOP MASONRY TERR STOO 43
1.00 UTILITY ROOM UTIL 91
1.00 PATIO, CONCRETE PATI 104
 
Other Improvements 
UnitsDescriptionItemCodeYear% BadValue
8X25 DIMENSIONS SHED FRAME 2008 24 2128
512 SIZE POOL RESIDENTIAL VINYL 2010 42 6043
 


Building Sketch
Photograph
Building Sketch Building Photo
(Click sketch for bigger image)