Building Summary

Data last updated on: 4/5/2026     Ownership current as of: 4/1/2026     Tax Year: 2026
REID 23718

PIN # 2753-90-0312

Location Address Property Description
6916 BEREA AVENUE EXT
   
Property Owner Owner's Mailing Address
HICKORY BREAD CAFE INC
PO BOX 464
ICARD NC 28666
Parcel
Buildings
Misc Improvements
Land
Deeds
Notes
Sales
Photos
Tax Bill
Map
Building Location Address
6916 BEREA AVENUE EXT
Card   of  1
Building Details

Building Type SINGLE FAMILY RES
Building Use SNG FAM
Units 0
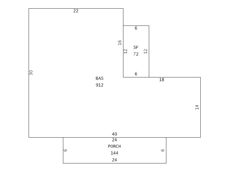
Living Area (SQFT) 984
Number of Stories 1.00
Style CONVENTIONAL
Foundation CRAWL
Exterior FRAME
Const Type
Heating NONE
Air Cond NONE
Plumbing Baths (Full):   1
Baths (Half):   0
Extra Fixtures:   0
Total Plumbing Fixtures:   3 
Bedrooms 2
Floor VYNL TILE
Roof Cover METAL
Roof Type DOUBLE PITCH
Main Body (SQFT) 912
Building Description

Year Built 1903
Additions 2
Effective Year 1940
Remodeled 0
Interior Adj.
Other Features
Building Total & Improvement Details

Grade D 82%
Percentage Complete 100
Total Adjusted Replacement Cost New $102,968
Physical Depreciation (% Bad) 0%
Depreciated Value $10,297
Economic Depreciation (% Bad) 0%
Functional Depreciation (% Bad) 0%
Total Depreciated Value $10,297
Market Area Factor 1.35
Building Value $13,901
Misc Improvements Value
Total Improvement Value $13,901

Assessed Land Value $18,616
   
Assessed Total Value $32,517



Addition Summary 
StoryTypeCodeArea
1.00 PORCH, OPEN PORC 144
1.00 SINGLE FAMILY SF 72
 
Other Improvements 
 


Building Sketch
Photograph
Building Sketch Building Photo
(Click sketch for bigger image)