Building Summary

Data last updated on: 1/31/2026     Ownership current as of: 1/29/2026     Tax Year: 2026
REID 1531

PIN # 2712-62-3234

Location Address Property Description
2661 MOUNT HOME CHURCH RD
   
Property Owner Owner's Mailing Address
HENSLEY, CASSIDY;HENSLEY, JOHN JR
2661 MOUNT HOME CHURCH RD
MORGANTON NC 28655
Parcel
Buildings
Misc Improvements
Land
Deeds
Notes
Sales
Photos
Tax Bill
Map
Building Location Address
2661 MOUNT HOME CHURCH RD
Card   of  1
Building Details

Building Type SINGLE FAMILY RES
Building Use SNG FAM
Units 0
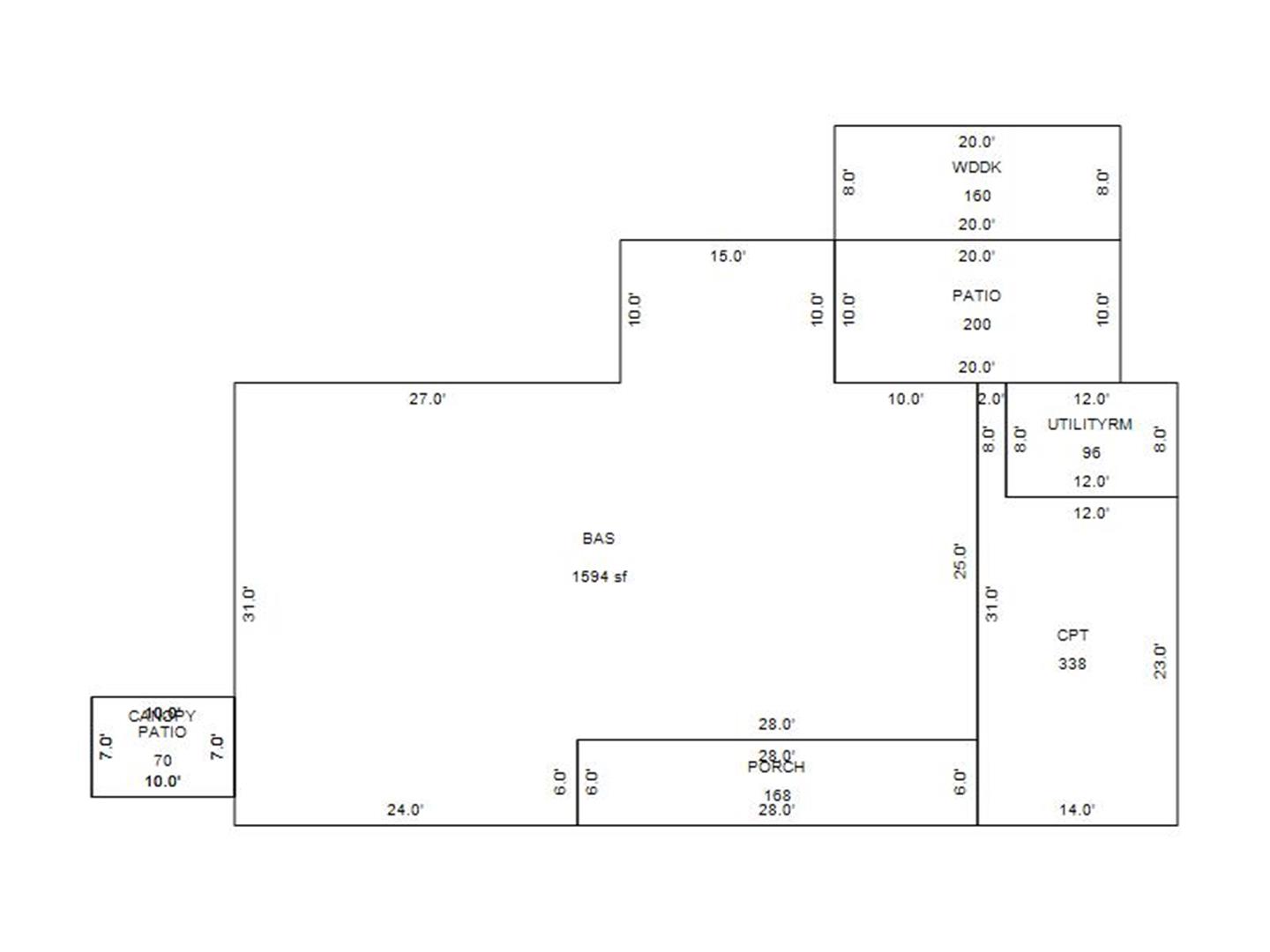
Living Area (SQFT) 1594
Number of Stories 1.00
Style RANCH
Foundation BRICK
Exterior BRICK VENEER
Const Type
Heating CENTRAL
Air Cond CENTRAL AC
Plumbing Baths (Full):   2
Baths (Half):   0
Extra Fixtures:   0
Total Plumbing Fixtures:   6 
Bedrooms 3
Floor VYNL TILE
Roof Cover ASPHALT SHINGLE
Roof Type DOUBLE PITCH
Main Body (SQFT) 1594
Building Description

Year Built 1970
Additions 8
Effective Year 1995
Remodeled 1980
Interior Adj.
Other Features
Building Total & Improvement Details

Grade C+8 108%
Percentage Complete 100
Total Adjusted Replacement Cost New $260,652
Physical Depreciation (% Bad) 0%
Depreciated Value $185,063
Economic Depreciation (% Bad) 0%
Functional Depreciation (% Bad) 0%
Total Depreciated Value $185,063
Market Area Factor 1.20
Building Value $222,076
Misc Improvements Value $1,442
Total Improvement Value $223,518

Assessed Land Value $19,676
   
Assessed Total Value $243,194



Addition Summary 
StoryTypeCodeArea
1.00 PORCH, OPEN PORC 168
1.00 CARPORT CPT 338
1.00 PATIO, CONCRETE PATI 200
1.00 CANOPY ATTACHED CANO 70
1.00 UTILITY ROOM UTIL 96
1.00 WOOD DECK WDDK 160
1.00 PATIO, CONCRETE PATI 70
1.00 BASEMENT UNFINISHED BSMT 722
 
Other Improvements 
UnitsDescriptionItemCodeYear% BadValue
8x15 DIMENSIONS CANOPY NO FLOOR 1963 75 78
12x14 DIMENSIONS SHED FRAME 1944 75 482
8x12 DIMENSIONS SHED, METAL 2013 18 882
 


Building Sketch
Photograph
Building Sketch Building Photo
(Click sketch for bigger image)