Building Summary

Data last updated on: 4/4/2026     Ownership current as of: 4/1/2026     Tax Year: 2026
REID 11209

PIN # 2704-21-1640

Location Address Property Description
211 TATE ST
   
Property Owner Owner's Mailing Address
WILLIAMS, CONNIE JEAN
434 N GREEN ST
MORGANTON NC 28655
Parcel
Buildings
Misc Improvements
Land
Deeds
Notes
Sales
Photos
Tax Bill
Map
Building Location Address
211 TATE ST
Card   of  1
Building Details

Building Type SINGLE FAMILY RES
Building Use SNG FAM
Units 0
Living Area (SQFT) 2128
Number of Stories 1.00
Style RANCH
Foundation BRICK
Exterior BRICK VENEER
Const Type
Heating CENTRAL
Air Cond CENTRAL AC
Plumbing Baths (Full):   2
Baths (Half):   1
Extra Fixtures:   1
Total Plumbing Fixtures:   9 
Bedrooms 2
Floor CARPET
Roof Cover ASPHALT SHINGLE
Roof Type DOUBLE PITCH
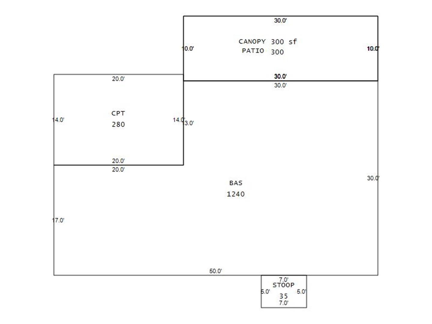
Main Body (SQFT) 1240
Building Description

Year Built 1948
Additions 6
Effective Year 1985
Remodeled 1964
Interior Adj.
Other Features
Building Total & Improvement Details

Grade C+8 108%
Percentage Complete 100
Total Adjusted Replacement Cost New $250,266
Physical Depreciation (% Bad) 0%
Depreciated Value $152,662
Economic Depreciation (% Bad) 0%
Functional Depreciation (% Bad) 0%
Total Depreciated Value $152,662
Market Area Factor 1.00
Building Value $152,662
Misc Improvements Value $2,366
Total Improvement Value $155,028

Assessed Land Value $19,800
   
Assessed Total Value $174,828



Addition Summary 
StoryTypeCodeArea
1.00 CARPORT CPT 280
1.00 PATIO, CONCRETE PATI 300
1.00 STOOP MASONRY TERR STOO 35
1.00 CANOPY ATTACHED CANO 300
1.00 BASEMENT FINISHED BSMT 888
1.00 BASEMENT UNFINISHED BSMT 180
 
Other Improvements 
UnitsDescriptionItemCodeYear% BadValue
20x20 DIMENSIONS CARPORT PREFAB W/FLOOR 2019 9 2366
 


Building Sketch
Photograph
Building Sketch Building Photo
(Click sketch for bigger image)